Einfamilienhaus mit Geschichte und Zukunft - Großzügiges Anwesen im Gründerzeitstil in Obrigheim!
Objektart
Adresse
Objektdaten
Informationen
Ausstattung
Details
Dieses charmante Gründerzeit-Stadthaus aus dem BJ 1893 bietet mit seinem besonderen architektonischen Charakter, großzügigen Raumdimensionen und einem weitläufigen Gartengrundstück ideale Voraussetzungen für eine große Familie oder das komfortable Wohnen mehrerer Generationen. Auf einem ca. 936 m² großen Erbpachtgrundstück gelegen, wird die Immobilie mit einem neu abzuschließenden Erbpachtvertrag über 99 Jahre veräußert. Gegebenfalls kann das Grundstück auch direkt gekauft werden.
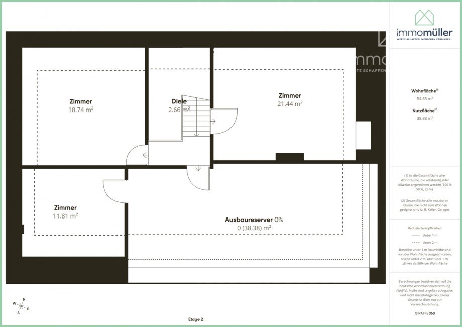
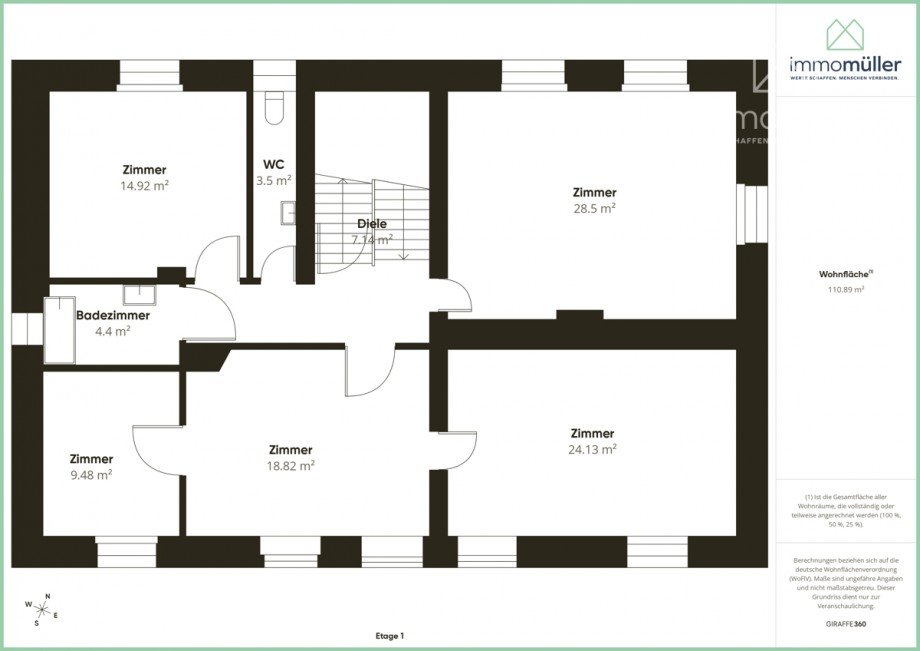
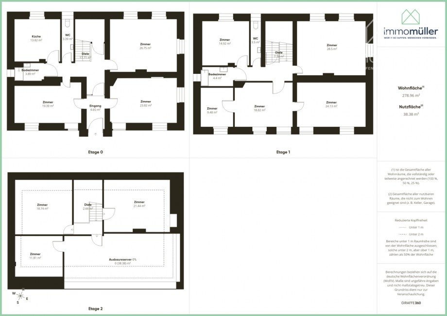
Die Gesamtwohnfläche von ca. 280 m², verteilt auf drei Etagen, umfasst insgesamt 11 Zimmer, zwei Bäder sowie zwei separate WCs und bietet damit außergewöhnlich viel Platz für Familienleben, Homeoffice, Gäste oder Hobbyräume. Die großzügigen, lichtdurchfluteten Räume mit über 3 Metern Deckenhöhe und großen Fensterflächen schaffen ein offenes, freundliches Wohnambiente, wie es für die repräsentative Bauweise der Gründerzeit typisch ist. Teilweise erhaltene Dielenböden und historische Holztüren unterstreichen den stilvollen Charakter des Hauses und bieten eine hervorragende Grundlage für eine liebevolle Modernisierung mit Respekt vor der historischen Substanz.
Die Immobilie eignet sich nicht nur hervorragend als reines Wohnhaus, sondern bietet auch die Möglichkeit, im Erdgeschoss ein kleines Büro, eine Praxis oder ein Atelier einzurichten, da hier ein separater Zugang vorhanden ist. So lassen sich Wohnen und Arbeiten ideal miteinander verbinden, ohne die Privatsphäre der Familie zu beeinträchtigen.
Die Fenster sind bereits zweifach verglast und isoliert, die Beheizung erfolgt über eine Gas-Zentralheizung (BJ 2003). Die Versorgungs- und Abwasserleitungen wurden vor etwa 30 bis 35 Jahren erneuert. Das Haus befindet sich insgesamt in einem renovierungsbedürftigen Zustand, bietet jedoch eine solide Bausubstanz und großes Potenzial, um es ganz nach den eigenen Vorstellungen zu gestalten. Das Dach ist nicht gedämmt, die vorhandenen Holz-Dachflächenfenster sind teilweise undicht und sollten erneuert werden, während sich das Dachgebälk in sehr gutem Zustand präsentiert.
Das Gebäude ist teilunterkellert und verfügt über einen Haustechnikraum sowie praktische Abstellflächen. Zum Anwesen gehören außerdem zwei Garagen, eine große Einfahrt mit weiteren Stellmöglichkeiten sowie ein Nebengebäude mit separaten Hausanschlüssen, das derzeit von den Pfadfindern als Treffpunkt genutzt wird.
Ein echtes Highlight ist das großzügige Gartengrundstück, das viel Platz zum Spielen bietet und zugleich Raum für Terrassen, Beete, Rückzugsorte oder einen Gemüsegarten lässt. Hier lässt sich ein grünes Familienparadies mit vielfältigen Gestaltungsmöglichkeiten schaffen.
Das Grundstück ist komplett umzäunt, was Privatsphäre und Sicherheit gewährleistet. Diese Barriere schafft eine angenehme Atmosphäre und ermöglicht es den Bewohnern, den Außenbereich ungestört zu nutzen.
Diese Immobilie vereint historischen Charme, außergewöhnlich viel Platz und flexible Nutzungsmöglichkeiten.
Objektart & Nutzung
o Gründerzeit-Stadthaus / bürgerliches Wohnhaus
o Geeignet für große Familie, Mehrgenerationenwohnen oder Wohnen & Arbeiten
o Separater Zugang im Erdgeschoss möglich für Büro, Atelier oder Praxis
Flächen & Räume
o Wohnfläche: ca. 280 m²
o Grundstücksgröße: ca. 936 m²
o Etagen: 3
o Zimmer: 11
o Bäder: 2
o Separate WCs: 2
o Teilunterkellert mit Haustechnikraum und Abstellräumen
o Nebengebäude mit separaten Hausanschlüssen
Bauweise & Zustand
o Bauzeit: Gründerzeit (spätes 19. Jahrhundert)
o Massive Bauweise, hohe Decken (> 3 m)
o Große Fensterflächen, sehr helle Räume
o Teilweise originale Dielenböden und Holztüren
o Renovierungsbedürftiger Zustand
Technik & Ausstattung
o Fenster: 2-fach verglast, isoliert
o Heizung: Gas-Zentralheizung aus 2003
o Versorgungs- und Abwasserleitungen: ca. 30-35 Jahre alt
o Dach: nicht gedämmt
o Dachflächenfenster: alte Holzfenster, teilweise undicht, sanierungsbedürftig
o Dachgebälk: sehr guter Zustand
Außenanlagen
o Großes Gartengrundstück mit vielen Gestaltungsmöglichkeiten
o 2 Garagen
o Große Einfahrt mit weiteren Stellplätzen
o Nebengebäude aktuell als Treffpunkt genutzt (Pfadfinder)
Mikrolage
Die Immobilie befindet sich in der Schloss-Straße im Ortsteil Colgenstein-Heidesheim von Obrigheim, einer ruhigen Wohnstraße mit überwiegend klassischer, gut gepflegter Wohnbebauung. Die Lage zeichnet sich durch kurze Wege zu Nachbarn, Spiel- und Erholungsflächen sowie zu fußläufig erreichbaren Alltagszielen aus. Öffentliche Verkehrsmittel, Einkaufsmöglichkeiten des täglichen Bedarfs, Ärzte und sonstige Versorgungseinrichtungen sind in wenigen Minuten erreichbar und ermöglichen komfortables Wohnen in einem familienfreundlichen Umfeld.
Makrolage
Obrigheim liegt im nordöstlichen Teil des Landkreises Bad Dürkheim in Rheinland-Pfalz und gehört zur Verbandsgemeinde Leiningerland. Die Gemeinde ist eingebettet in die landschaftlich reizvolle Region der Pfalz, direkt an der Grenze zu Rheinhessen, und Teil der europäischen Metropolregion Rhein-Neckar. Aufgrund der Lage zwischen Grünstadt, Worms und Neustadt an der Weinstraße, sowie der guten Anbindung an überregionale Verkehrsachsen, profitieren Einwohner von der Nähe zu urbanen Zentren bei gleichzeitig ländlich geprägter Atmosphäre. Obrigheim und seine Ortsteile liegen entlang des Eisbachs, eingebettet in fruchtbare Weinberge und landwirtschaftliche Flächen.
Infrastruktur
Die Infrastruktur in Obrigheim ist gut auf Familien und den täglichen Bedarf ausgerichtet und in nur wenigen Minuten vollständig erreichbar. Die Gemeinde wird durch Busverbindungen an regionale Verkehrssysteme angeschlossen; der öffentliche Nahverkehr ist in das Verkehrsnetz des Verkehrsverbundes Rhein-Neckar (VRN) eingebunden, was Verbindungen in die umliegenden Städte komfortabel nutzbar macht. Die Verkehrsanbindung über Straßen zu benachbarten Mittelzentren und Autobahnen ermöglicht flexible Pendel- und Einkaufswege.
Bildung
Obrigheim bietet ein familienfreundliches Bildungsangebot direkt vor Ort. Für die jüngsten Bewohner stehen mehrere Kindertagesstätten und Kindergärten zur Verfügung, die eine ganzheitliche Betreuung von der Krippe bis zum Schuleintritt gewährleisten. Die Grundschule am Sonnenberg in Obrigheim nimmt alle schulpflichtigen Kinder aus den Ortsteilen auf und bietet ein solides Lernumfeld mit weiterführenden Angeboten. Die gute Zusammenarbeit zwischen Kindertagesstätten und Schule unterstützt einen reibungslosen Übergang in die schulische Laufbahn.
Freizeit
Die Umgebung von Obrigheim zeichnet sich durch vielfältige Freizeit- und Erholungsangebote aus. Die Lage in der Pfalz mit Weinbergen, Feldern und dem Eisbach lädt zu Spaziergängen, Rad- und Wander touren ein. In der Gemeinde gibt es ein reges Vereinsleben mit Sport- und Freizeitgruppen für Jung und Alt. Regelmäßige Feste, kulturelle Veranstaltungen und lokale Weinfeste prägen das Gemeinschaftsleben. Nahgelegene Ausflugsziele im Leiningerland, Natur- und Wandergebiete sowie Weingüter bieten abwechslungsreiche Freizeitgestaltung für Familien.
Haftungsausschluss: Bei unseren Exposés legen wir großen Wert darauf, Ihnen einen umfassenden und detaillierten Einblick in das Objekt zu gewähren. Die dem Exposé beigefügten Grundrisse wurden mithilfe der Kamera Giraffe360 erstellt. Die Flächenberechnungen erfolgen gemäß der Wohnflächenverordnung (WoFlV). Alle dargestellten Maße und Flächenangaben dienen der Orientierung und stellen ungefähre Angaben dar. Für deren Richtigkeit und Vollständigkeit wird keine Haftung übernommen. Sie ermöglichen eine erste visuelle Vorstellung der Objektstruktur.
Alle in diesem Exposé gemachten Angaben stammen aus Quellen, die wir als zuverlässig erachten, und wurden mit größter Sorgfalt und nach bestem Wissen und Gewissen zusammengestellt. Diese Informationen basieren auf den Auskünften des Verkäufers oder Dritter. Trotz unserer Bemühungen um größtmögliche Genauigkeit können wir keine Gewähr und Haftung für die Vollständigkeit, Richtigkeit und Aktualität dieser Angaben übernehmen.
Wir als Immobiliendienstleister sind nach dem Geldwäschegesetz verpflichtet die Identität unserer Kunden festzustellen und zu überprüfen. Diese Verpflichtung haben Immobilienmakler vor dem mündlichen oder schriftlichen Maklervertrag zu erfüllen. Um zu verhindern, dass Gewinne aus Straftaten in Umlauf gebracht werden, gibt es das sogenannte Geldwäschegesetz (GwG). Neben Banken, Versicherungen, Treuhändern, Anwälten und Steuerberatern gehören auch Immobiliendienstleister zu den Verpflichteten des GwG und müssen die Sorgfaltspflichten des Gesetzes anwenden. Seit 2011 wird die Einhaltung der Pflichten durch die Aufsichtsbehörden lückenlos kontrolliert. Die Verpflichteten müssen die Einhaltung dieser gegenüber den Behörden belegen.
- - - - - - - - - - - - - - - - - - - - - - - - - - - - - - - - - - - - - - - - - - - - - - - -
o Kostenlose Marktwerteinschätzung für Eigentümer o
Sie möchten Ihre Immobilie verkaufen oder vermieten und den realistischen Marktwert erfahren? Wir bieten Eigentümern eine kostenlose und unverbindliche Marktwerteinschätzung auf Basis aktueller Marktdaten und unserer regionalen Expertise. So erhalten Sie eine fundierte Entscheidungsgrundlage für die weitere Vermarktung.
o Vermietungsservice für Eigentümer - sorgenfrei und transparent o
Für private Vermieter bieten wir einen Rundum-Service bei der Vermietung inklusive Mietpreisermittlung, Exposé-Erstellung, Besichtigungsmanagement, Bonitätsprüfung sowie Erstellung des Mietvertrages. Die Vergütung beträgt 2 Monatsmieten (zzgl. gesetzlicher MwSt.) und ist nur bei erfolgreicher Vermietung fällig. Bei der gewerblichen Vermietung ist dieser Service für Vermieter kostenfrei.
Ansprechpartner
Telefax: 004963599612968
Mobil: 00491636967462
info@anfrageimmomuellerpfalz.de
Downloads
Energieausweis (Bedarfsausweis)
265,20 kWh / (m²*a) Endenergiebedarf
265,20 kWh / (m²*a) Endenergiebedarf
265,20 kWh / (m²*a) Endenergiebedarf
Weitere Informationen
| Wesentlicher Energieträger | GAS |
| Energieausweis gültig bis | 2035-10-26 |
| Energieausweis Jahrgang | ab dem 1.5.2014 |
| Energieausweis Werteklasse | H |
| Energieausweis Baujahr | 2003 |
| Energieausweis Gebäudeart | Wohngebäude |
| Heizung | Zentralheizung |
| Befeuerung | Gas |
Ich bin damit einverstanden, dass mir Karten von Google angezeigt werden. Es gelten die Datenschutzbedingungen von Google (https://policies.google.com/privacy).
Ich bin einverstanden
