Wo Ruhe wohnt und Alltag leiser wird - EFH mit ELW im Wendehammer - tolle Lage an den Weinbergen!
Objektart
Adresse
Objektdaten
Informationen
Ausstattung
Details
Am Ende eines ruhigen Wendehammers unmittelbar an den Weinberger in 67269 Grünstadt liegt dieses freistehende Einfamilienhaus auf einem 808 Quadratmeter großen Grundstück - ein Ort, an dem Privatsphäre, Großzügigkeit und Wohnqualität eine harmonische Verbindung eingehen. Mit nur einseitigem Straßenzugang, zwei angrenzenden Fußwegen und lediglich einem Nachbargrundstück bietet die Lage ein hohes Maß an Ruhe und Geborgenheit.
Das im Jahr 1982 massiv errichtete Haus überzeugt durch seine solide Bauweise, seine durchdachte Raumaufteilung und eine Wohnfläche von rund 280 Quadratmetern, verteilt auf Keller-, Erd- und Obergeschoss mit einer eigenständigen Einliegerwohnung mit separatem Treppenhaus und Zugang, die vielseitige Nutzungsmöglichkeiten eröffnet.
Bereits beim Betreten des Hauses empfängt eine großzügige Diele, die Offenheit und Struktur vereint und den Blick in die verschiedenen Wohnbereiche lenkt. Das Erdgeschoss bildet das Herz des Hauses und bietet mit Küche, Esszimmer und Wohnzimmer einen lebendigen Mittelpunkt für den Alltag. Große Fensterflächen schaffen helle, freundliche Räume und verbinden das Wohnen im Inneren harmonisch mit dem Garten. Ein Arbeitszimmer ermöglicht konzentriertes Arbeiten oder einen ruhigen Rückzugsort, während ein Gäste-WC den Komfort dieser Ebene abrundet. Über das zentrale Treppenhaus besteht Zugang sowohl zum Obergeschoss als auch in das Kellergeschoss. Vom Wohnzimmer führt ein direkter Ausgang über eine Terrasse in den Garten, der zu entspannten Stunden im Grünen einlädt.
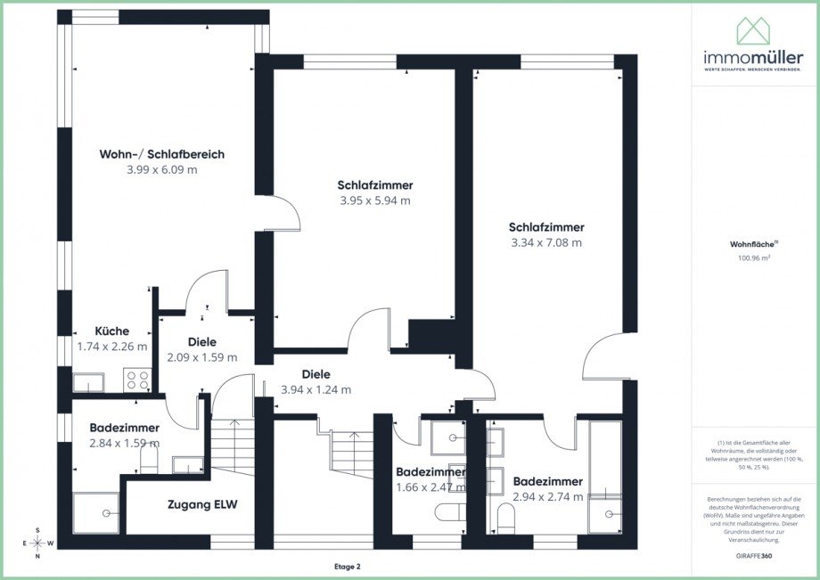
Im Obergeschoss setzt sich das großzügige Wohnkonzept fort. Zwei Schlafzimmer bieten Raum für Ruhe und Erholung, ergänzt durch zwei Badezimmer, die eine entspannte Nutzung auch im Familienalltag ermöglichen. Ein Flur verbindet die Räume auf angenehme Weise, während der Balkon einen geschützten Platz im Freien schafft, um den Blick schweifen zu lassen und den Tag ausklingen zu lassen. Auf dieser Ebene befindet sich zudem die Einliegerwohnung, die zusätzlich über ein eigenes Treppenhaus erreichbar ist und damit ein hohes Maß an Unabhängigkeit bietet. Sie verfügt über einen offenen Wohn- und Schlafbereich, eine integrierte Küchenzeile, ein eigenes Badezimmer und eignet sich ideal für Gäste, erwachsene Familienmitglieder, Mehrgenerationenwohnen oder auch zur Vermietung.
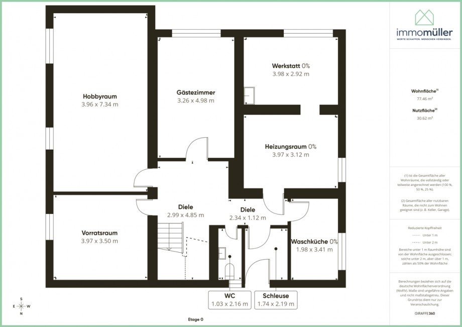
Das Kellergeschoss erweitert das Platzangebot erheblich und überzeugt durch seine Vielseitigkeit. Neben einem Flur stehen ein Vorrats- und Medienraum, ein Hobbyraum, ein Gästezimmer, ein Heizungsraum, eine Werkstatt sowie eine Waschküche zur Verfügung. Ergänzt wird dieser Bereich durch ein separates WC und eine Schleuse mit direktem Treppenaufgang in den Garten, wodurch auch diese Ebene funktional und gut in den Alltag integrierbar ist.
Für Fahrzeuge bietet das Anwesen eine Doppelgarage mit zwei Toren und Flachdach, die direkten Zugang zum Garten ermöglicht sowie zwei Stellplätze vor der Garage.
Objektart & Nutzung
o Freistehendes Einfamilienhaus
o Zusätzliche Einliegerwohnung im Obergeschoss
o Einliegerwohnung mit eigenem Treppenhaus
o Geeignet für Familien, Mehrgenerationenwohnen, Wohnen & Arbeiten oder Vermietung
o Ruhige Wohnlage am Ende eines Wendehammers an den Weinbergen
Flächen & Räume
o Wohnfläche ca. 280 m²
o Grundstücksgröße 808 m²
o Drei Ebenen: Kellergeschoss, Erdgeschoss, Obergeschoss
Bauweise & Zustand
o Baujahr 1982
o Massive Bauweise
o Satteldach, nicht ausgebaut
o Sehr gepflegter Gesamtzustand
o Laufend modernisiert
Technik & Ausstattung
o Gasheizung, erneuert 2020, EG und OG Fußbodenheizung, Keller teilweise
o Moderne Hauselektrik mit FI Schutzschalter
o Fenster mit Dreifachverglasung und Einbruchsicherung, erneuert 2022
Außenanlagen
o Grundstück mit einseitigem Straßenzugang
o Zwei angrenzende Fußwege
o Ein direkt angrenzendes Nachbargrundstück
o Doppelgarage mit zwei Toren und Flachdach
o Automatisch öffnende Garagentore, erneuert 2022
o Direkter Zugang von der Garage zum Garten
o Zwei zusätzliche PKW-Stellplätze vor den Garagen auf dem Grundstück
Mikrolage
Die Immobilie befindet sich in ruhiger und gewachsener Wohnlage von Grünstadt, am Ende eines verkehrsarmen Wendehammers. Die unmittelbare Umgebung ist geprägt von Doppelhäusern & freistehenden Einfamilienhäusern und gepflegten Grundstücken. Durch den nur einseitigen Straßenzugang sowie zwei angrenzende Fußwege bietet das Grundstück ein hohes Maß an Privatsphäre und Sicherheit. Der geringe Durchgangsverkehr sorgt für eine angenehme Wohnruhe und macht die Lage besonders attraktiv für Familien, Ruhesuchende und Menschen, die ein naturnahes Wohnumfeld schätzen.
Makrolage - Grünstadt und Umgebung
Grünstadt liegt im Herzen der Metropolregion Rhein-Neckar und zählt zu den attraktivsten Wohnorten in der Pfalz. Die Stadt vereint ländlichen Charme mit urbaner Infrastruktur und hervorragender Verkehrsanbindung. Über die nahegelegene A6 sind Städte wie Ludwigshafen, Mannheim, Worms und Kaiserslautern in 20-40 Minuten erreichbar. Zudem bietet der Bahnhof Grünstadt regelmäßige Regionalbahnverbindungen in Richtung Neustadt, Frankenthal und Bad Dürkheim.
Infrastruktur
Die Verkehrsanbindung ist hervorragend: Eine Bushaltestelle befindet sich nur wenige Gehminuten entfernt, der Bahnhof ist in etwa 10 Minuten zu Fuß erreichbar. Einkaufsmöglichkeiten wie REWE, Aldi oder dm liegen in unmittelbarer Nähe. Auch Banken, Ärzte, Apotheken und gastronomische Betriebe sind schnell erreichbar. Die medizinische Versorgung ist durch niedergelassene Fachärzte und das nahegelegene Krankenhaus in Grünstadt bestens gewährleistet.
Bildung
Familien profitieren von einer sehr guten Bildungslandschaft. Mehrere Kindergärten, Grundschulen sowie weiterführende Schulen wie die IGS Grünstadt und das Leininger-Gymnasium liegen in kurzer Entfernung. Zudem sind Volkshochschule und Musikschule vor Ort vertreten und bieten ein breites Angebot an Kursen und Freizeitaktivitäten.
Freizeit und Erholung
Grünstadt bietet eine hohe Lebensqualität mit vielfältigen Freizeitmöglichkeiten. In wenigen Minuten erreicht man den idyllischen Stadtpark, verschiedene Sportvereine, ein Freibad und zahlreiche Wander- und Radwege entlang der Deutschen Weinstraße. Die umliegenden Weinberge laden zu Spaziergängen, Weinfesten und kulinarischen Entdeckungen ein. Auch kulturell hat Grünstadt mit regelmäßigen Veranstaltungen, dem Theaterprogramm und dem historischen Marktplatz viel zu bieten.
Haftungsausschluss: Bei unseren Exposés legen wir großen Wert darauf, Ihnen einen umfassenden und detaillierten Einblick in das Objekt zu gewähren. Die dem Exposé beigefügten Grundrisse wurden mithilfe der Kamera Giraffe360 erstellt. Die Flächenberechnungen erfolgen gemäß der Wohnflächenverordnung (WoFlV). Alle dargestellten Maße und Flächenangaben dienen der Orientierung und stellen ungefähre Angaben dar. Für deren Richtigkeit und Vollständigkeit wird keine Haftung übernommen. Sie ermöglichen eine erste visuelle Vorstellung der Objektstruktur.
Alle in diesem Exposé gemachten Angaben stammen aus Quellen, die wir als zuverlässig erachten, und wurden mit größter Sorgfalt und nach bestem Wissen und Gewissen zusammengestellt. Diese Informationen basieren auf den Auskünften des Verkäufers oder Dritter. Trotz unserer Bemühungen um größtmögliche Genauigkeit können wir keine Gewähr und Haftung für die Vollständigkeit, Richtigkeit und Aktualität dieser Angaben übernehmen.
Wir als Immobiliendienstleister sind nach dem Geldwäschegesetz verpflichtet die Identität unserer Kunden festzustellen und zu überprüfen. Diese Verpflichtung haben Immobilienmakler vor dem mündlichen oder schriftlichen Maklervertrag zu erfüllen. Um zu verhindern, dass Gewinne aus Straftaten in Umlauf gebracht werden, gibt es das sogenannte Geldwäschegesetz (GwG). Neben Banken, Versicherungen, Treuhändern, Anwälten und Steuerberatern gehören auch Immobiliendienstleister zu den Verpflichteten des GwG und müssen die Sorgfaltspflichten des Gesetzes anwenden. Seit 2011 wird die Einhaltung der Pflichten durch die Aufsichtsbehörden lückenlos kontrolliert. Die Verpflichteten müssen die Einhaltung dieser gegenüber den Behörden belegen.
- - - - - - - - - - - - - - - - - - - - - - - - - - - - - - - - - - - - - - - - - - - - - - - -
o Kostenlose Marktwerteinschätzung für Eigentümer o
Sie möchten Ihre Immobilie verkaufen oder vermieten und den realistischen Marktwert erfahren? Wir bieten Eigentümern eine kostenlose und unverbindliche Marktwerteinschätzung auf Basis aktueller Marktdaten und unserer regionalen Expertise. So erhalten Sie eine fundierte Entscheidungsgrundlage für die weitere Vermarktung.
o Vermietungsservice für Eigentümer - sorgenfrei und transparent o
Für private Vermieter bieten wir einen Rundum-Service bei der Vermietung inklusive Mietpreisermittlung, Exposé-Erstellung, Besichtigungsmanagement, Bonitätsprüfung sowie Erstellung des Mietvertrages. Die Vergütung beträgt 2 Monatsmieten (zzgl. gesetzlicher MwSt.) und ist nur bei erfolgreicher Vermietung fällig. Bei der gewerblichen Vermietung ist dieser Service für Vermieter kostenfrei.
Ansprechpartner
Telefax: 004963599612968
Mobil: 00491636967462
info@anfrageimmomuellerpfalz.de
Downloads
Energieausweis (Verbrauchsausweis)
88,10 kWh / (m²*a) Energieverbrauchskennwert
88,10 kWh / (m²*a) Energieverbrauchskennwert
88,10 kWh / (m²*a) Energieverbrauchskennwert
Weitere Informationen
| Wesentlicher Energieträger | GAS |
| Energieausweis gültig bis | 2036-01-26 |
| Energieausweis Jahrgang | ab dem 1.5.2014 |
| Energieausweis Werteklasse | C |
| Energieausweis Baujahr | 2020 |
| Energieausweis Gebäudeart | Wohngebäude |
| Heizung | Zentralheizung, Fußbodenheizung |
| Befeuerung | Gas |
Ich bin damit einverstanden, dass mir Karten von Google angezeigt werden. Es gelten die Datenschutzbedingungen von Google (https://policies.google.com/privacy).
Ich bin einverstanden
