Ortsbildprägendes Denkmal sucht Visionär: 4-Seiten-Hof in zentraler Lage von Eisenberg (Pfalz)
Objektart
Adresse
Objektdaten
Informationen
Ausstattung
Details
In zentraler Lage von Eisenberg, inmitten des ausgewiesenen Sanierungsgebiets "Hauptstraße", erwartet Sie ein außergewöhnliches Kulturdenkmal mit Geschichte, Charakter und erheblichem Entwicklungspotenzial: der denkmalgeschützte Vierseithof in der Hauptstraße 94 - das ehemalige Gasthaus "Zum Karpfen".
Der spätbarocke Bau, teilweise in Fachwerk ausgeführt und auf das Jahr 1767 datiert, ist in der Denkmalliste Rheinland-Pfalz verzeichnet. Das Ensemble umfasst das ehemalige Gasthaus mit zwei tonnengewölbten Kellern (einer datiert auf 1748, mit Spolie von 1736), ein früheres Kelterhaus (um 1850), Backhaus, Stall sowie Scheune (ebenfalls bez. 1767). Gemeinsam mit den Gebäuden Hauptstraße 105 und 107 prägt der Hof das Ortsbild in besonderer Weise - ein Stück Stadtgeschichte mit beeindruckender Präsenz.
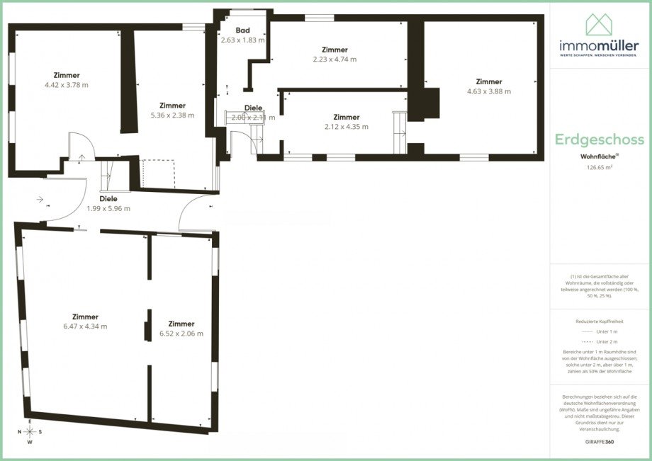
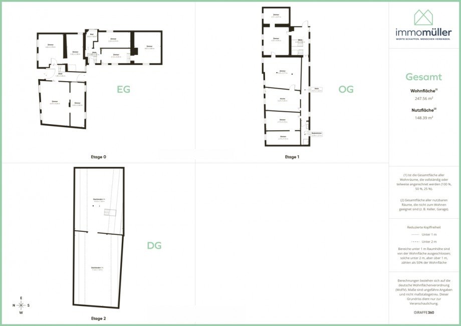
Sie erwerben hier kein gewöhnliches Wohnhaus, sondern ein historisches Anwesen mit rund 650 m² Grundstücksfläche und einem atmosphärischen, mit Kopfsteinpflaster versehenen Innenhof. Das Wohnhaus bietet im Erd- und Obergeschoss jeweils ca. 120 m² Grundfläche. Das Dachgeschoss ist derzeit nicht ausgebaut und umfasst weitere ca. 148 m² Ausbaureserve. Die Gewölbekeller - teils als Kreuzgewölbe ausgeführt - vermitteln eindrucksvoll den historischen Charakter des Gebäudes und eröffnen vielfältige Nutzungsmöglichkeiten, beispielsweise als Wein- oder Lagerkeller, Veranstaltungsfläche oder stilvolles Ambiente für besondere Konzepte.
Gleichzeitig sprechen wir bewusst Klartext: Die Immobilie ist stark sanierungsbedürftig. Das Dach des Wohnhauses ist teilweise undicht, Ziegel fehlen, eine Dämmung ist nicht vorhanden. In einem der Scheunengebäude ist das Dach bereits eingestürzt. Die Heizung ist defekt. Durch geplatzte Leitungen sind Wasserschäden im Wohnhaus entstanden. Teilweise sind Decken marode. Die letzte größere Umbaumaßnahme erfolgte ab ca. 1980 teilweise fortlaufend - dennoch besteht umfassender Modernisierungs- und Instandsetzungsbedarf.
Gerade darin liegt jedoch die Chance.
Als Objekt im förmlich festgelegten Sanierungsgebiet "Hauptstraße" besteht grundsätzlich die Möglichkeit, Fördermittel aus Bund-Länder-Programmen (z. B. "Soziale Stadt") in Anspruch zu nehmen. Zudem können bei denkmalgerechter Sanierung steuerliche Vorteile genutzt werden. Konkrete Förder- und Abschreibungsmöglichkeiten sind individuell mit den zuständigen Stellen sowie einem Steuerberater zu klären.
Die vorhandenen Nebengebäude - Scheunen, Stallungen und Werkstattbereiche - bieten enormes Potenzial: Ob Atelier, Werkstatt, Ausstellungsraum, Eventlocation, Ferienwohnungen, Mehrgenerationenwohnen, Wohnen und Arbeiten unter einem Dach oder ein individuelles Gastronomie- bzw. Kulturkonzept - dieses Anwesen eröffnet Ihnen Raum für Visionen. Auch eine mögliche Erweiterung der Wohnfläche oder ergänzende Bebauung erscheint grundsätzlich denkbar, muss jedoch vorab mit der Stadt sowie der Denkmalbehörde abgestimmt werden. Eine Bauvoranfrage liegt derzeit nicht vor.
Dieses Objekt richtet sich an Käufer mit Weitblick, Gestaltungswillen und einem Gespür für historische Substanz. Wenn Sie den Wert alter Mauern erkennen, wenn Sie ein Projekt suchen, das Herzblut und Engagement erfordert - und zugleich die Chance bietet, ein ortsbildprägendes Denkmal zu neuem Leben zu erwecken -, dann finden Sie hier eine seltene Gelegenheit.
Ein attraktiver Kaufpreis, die zentrale Lage in Eisenberg und das erhebliche Entwicklungspotenzial bilden die Grundlage für ein außergewöhnliches Investitions- oder Herzensprojekt.
Gerne stellen wir Ihnen das Anwesen persönlich vor und besprechen mit Ihnen die vielfältigen Möglichkeiten, die in diesem historischen Vierseithof stecken.
Mikrolage
Der Vierseithof befindet sich in zentraler Lage von Eisenberg in der Hauptstraße 94 - dem historischen Kernbereich der Stadt. Die direkte Umgebung ist geprägt von gewachsener Bebauung, weiteren denkmalgeschützten Gebäuden und einer kleinteiligen Mischnutzung aus Wohnen, Dienstleistung und Einzelhandel. Einkaufsmöglichkeiten für den täglichen Bedarf, Bäckereien, Gastronomie, Apotheken und Ärzte sind fußläufig erreichbar. Durch die innerstädtische Lage profitieren Sie von kurzen Wegen und einer guten Sichtbarkeit - ein klarer Vorteil auch für kombinierte Wohn- und Nutzungskonzepte.
Makrolage
Eisenberg liegt im Donnersbergkreis in Rheinland-Pfalz und ist verkehrlich gut angebunden. Über die nahegelegene Autobahn A6 bestehen schnelle Verbindungen in Richtung Mannheim, Kaiserslautern und Saarbrücken. Auch die Städte Worms und Mainz sind in angemessener Fahrzeit erreichbar. Die Lage zwischen Metropolregion Rhein-Neckar und Westpfalz macht Eisenberg sowohl für Pendler als auch für Gewerbetreibende attraktiv. Der Donnersberg als höchste Erhebung der Pfalz prägt die landschaftlich reizvolle Umgebung.
Bildung
In Eisenberg selbst stehen Kindertagesstätten sowie eine Grundschule zur Verfügung. Weiterführende Schulen befinden sich ebenfalls im Stadtgebiet beziehungsweise in den umliegenden Gemeinden und sind gut erreichbar. Ergänzende Bildungsangebote, darunter Berufsbildende Schulen sowie Hochschulen, finden sich unter anderem in Kaiserslautern und der Rhein-Neckar-Region. Damit ist eine solide Bildungsinfrastruktur für Familien gegeben.
Infrastruktur
Die Stadt bietet eine gut ausgebaute Infrastruktur mit Einkaufsmöglichkeiten, medizinischer Versorgung, Banken, Gastronomie und Handwerksbetrieben. Der öffentliche Personennahverkehr bindet Eisenberg an das regionale Verkehrsnetz an. Über die nahegelegenen Autobahnanschlüsse ist eine schnelle überregionale Erreichbarkeit gewährleistet. Die Lage im ausgewiesenen Sanierungsgebiet "Hauptstraße" unterstreicht zudem die städtebauliche Bedeutung des unmittelbaren Umfelds und eröffnet perspektivisch weitere Entwicklungsmöglichkeiten.
Freizeit
Die Umgebung von Eisenberg ist geprägt von Natur, Wäldern und Naherholungsgebieten. Wander- und Radwege im Bereich des Donnersbergs bieten vielfältige Freizeitmöglichkeiten. Sportvereine, ein Schwimmbad sowie kulturelle Veranstaltungen im Stadtgebiet sorgen für ein aktives Gemeindeleben. Die Kombination aus naturnahem Wohnen und gleichzeitig zentraler Stadtlage macht den Standort besonders attraktiv - sowohl für Eigennutzer als auch für Investoren mit Weitblick.
Haftungsausschluss: Bei unseren Exposés legen wir großen Wert darauf, Ihnen einen umfassenden und detaillierten Einblick in das Objekt zu gewähren. Die Grundrisse welche diesem Exposé beiliegen wurden uns von dem Eigentümer zur Verfügung gestellt. Die Flächenberechnungen erfolgen gemäß der Wohnflächenverordnung (WoFlV). Alle dargestellten Maße und Flächenangaben dienen der Orientierung und stellen ungefähre Angaben dar. Für deren Richtigkeit und Vollständigkeit wird keine Haftung übernommen. Sie ermöglichen eine erste visuelle Vorstellung der Objektstruktur.
Alle in diesem Exposé gemachten Angaben stammen aus Quellen, die wir als zuverlässig erachten, und wurden mit größter Sorgfalt und nach bestem Wissen und Gewissen zusammengestellt. Diese Informationen basieren auf den Auskünften des Verkäufers oder Dritter. Trotz unserer Bemühungen um größtmögliche Genauigkeit können wir keine Gewähr und Haftung für die Vollständigkeit, Richtigkeit und Aktualität dieser Angaben übernehmen.
Wir als Immobiliendienstleister sind nach dem Geldwäschegesetz verpflichtet die Identität unserer Kunden festzustellen und zu überprüfen. Diese Verpflichtung haben Immobilienmakler vor dem mündlichen oder schriftlichen Maklervertrag zu erfüllen. Um zu verhindern, dass Gewinne aus Straftaten in Umlauf gebracht werden, gibt es das sogenannte Geldwäschegesetz (GwG). Neben Banken, Versicherungen, Treuhändern, Anwälten und Steuerberatern gehören auch Immobiliendienstleister zu den Verpflichteten des GwG und müssen die Sorgfaltspflichten des Gesetzes anwenden. Seit 2011 wird die Einhaltung der Pflichten durch die Aufsichtsbehörden lückenlos kontrolliert. Die Verpflichteten müssen die Einhaltung dieser gegenüber den Behörden belegen.
- - - - - - - - - - - - - - - - - - - - - - - - - - - - - - - - - - - - - - - - - - - - - - - -
o Kostenlose Marktwerteinschätzung für Eigentümer o
Sie möchten Ihre Immobilie verkaufen oder vermieten und den realistischen Marktwert erfahren? Wir bieten Eigentümern eine kostenlose und unverbindliche Marktwerteinschätzung auf Basis aktueller Marktdaten und unserer regionalen Expertise. So erhalten Sie eine fundierte Entscheidungsgrundlage für die weitere Vermarktung.
o Vermietungsservice für Eigentümer - sorgenfrei und transparent o
Für private Vermieter bieten wir einen Rundum-Service bei der Vermietung inklusive Mietpreisermittlung, Exposé-Erstellung, Besichtigungsmanagement, Bonitätsprüfung sowie Erstellung des Mietvertrages. Die Vergütung beträgt 2 Monatsmieten (zzgl. gesetzlicher MwSt.) und ist nur bei erfolgreicher Vermietung fällig. Bei der gewerblichen Vermietung ist dieser Service für Vermieter kostenfrei.
Ansprechpartner
Telefax: 004963599612968
Mobil: 00491636967462
info@anfrageimmomuellerpfalz.de
Ich bin damit einverstanden, dass mir Karten von Google angezeigt werden. Es gelten die Datenschutzbedingungen von Google (https://policies.google.com/privacy).
Ich bin einverstanden
