Charmantes Bauernhaus mit separatem vermietetem Wohnhaus, 2 Scheunen & großem Hof in Dirmstein
Objektart
Adresse
Objektdaten
Informationen
Ausstattung
Details
Allgemein
Dieses charmante Bauernhaus aus ca. 1930 vereint historischen Charakter mit vielseitigen Nutzungsmöglichkeiten. Ergänzt wird das Ensemble durch eine 1998 umgebautes und aktuell vermietetes separates Wohnhaus - ideal zur Generierung zusätzlicher Einnahmen oder für Mehrgenerationenwohnen.
Auf einem großzügigen Grundstück von ca. 674 m² in ruhiger Lage bietet die Immobilie viel Raum zur persönlichen Entfaltung. Die große Hofeinfahrt mit zahlreichen Stellplätzen sowie der weitläufige Innenhof eröffnen flexible Nutzungsmöglichkeiten.
Bauweise
Das Anwesen besteht aus einem klassischen Bauernhaus in massiver Bauweise sowie ein separates Wohnhaus. Der ursprüngliche Charme des Hauses ist erhalten geblieben und bietet eine solide Grundlage für individuelle Modernisierungsmaßnahmen. Zwei großzügige Scheunen auf dem Grundstück erweitern das Potenzial erheblich - ob als Lagerfläche, Werkstatt oder für einen kreativen Umbau.
Heizung
Sowohl das Haupthaus als auch das zusätzliche, vermietete Wohnhaus verfügen über separate Gaszentralheizungen. Diese Aufteilung ermöglicht eine unabhängige Nutzung und Abrechnung der Einheiten.
Dach
Das Dach ist teilweise gedämmt und bietet zusätzlich Ausbaupotenzial. Hier besteht die Möglichkeit, weiteren Wohnraum zu schaffen und den Wert der Immobilie nachhaltig zu steigern. Insgesamt besteht Sanierungsbedarf, wodurch sich attraktive Gestaltungsspielräume für Käufer ergeben.
Boden
Die Böden im Objekt sind funktional angelegt und bieten eine solide Basis für eine Modernisierung nach individuellen Vorstellungen. Hier lässt sich durch gezielte Maßnahmen ein zeitgemäßes und hochwertiges Wohnambiente schaffen.
Garage & Internet
Neben der großen Einfahrt stehen im Innenhof zahlreiche Stellplätze zur Verfügung. Die vorhandenen Scheunen bieten zusätzliche Abstellmöglichkeiten oder Ausbaureserven. Ein Glasfaser-Internetanschluss ist in der Straße vorhanden, somit kann auf die modernste und schnellste Technik zugegriffen werden.
Fazit
Ein seltenes Angebot für Liebhaber historischer Immobilien mit Entwicklungspotenzial: Dieses Bauernhaus mit separatem Wohnhaus überzeugt durch seine großzügige Fläche (ca. 137 m² im Haupthaus und ca. 90 m² in der Nebenhaus), das weitläufige Grundstück sowie die vielseitigen Nutzungsmöglichkeiten.
Ob als großzügiges Familienanwesen, Mehrgenerationenhaus oder Kombination aus Eigennutzung und Vermietung - hier eröffnen sich zahlreiche Perspektiven. Der sanierungsbedürftige Zustand bietet dabei die Chance, das Objekt nach eigenen Vorstellungen zu gestalten und langfristig aufzuwerten.
Ein Objekt mit Charakter, Raum und Potenzial - ideal für visionäre Käufer.
Objektart & Nutzung
o Bauernhaus aus 1930 und vermietetes, 1998 umgebautes Nebengebäude (Wohnhaus)
o Nutzung als Wohnhaus mit viel Fläche
o Grundstück in ruhiger Lage
o Große Einfahrt mit Stellplätzen im Hof
o Gewölbekeller
Flächen & Räume
o Wohnfläche ca. 137 m², verteilt auf Erdgeschoss und Obergeschoss im Bauernhaus
o Wohnfläche ca. 90 m², im Nebenhaus
o Grundstücksgröße 674 m²
Erdgeschoss:
o Wohnzimmer
o Küche
o Abstellraum
o Deckenhöhe ca. 2,40 m
Obergeschoss:
o 4 Schlafzimmer / Arbeitszimmer
o Duschbad aus 2000ern
Dachgeschoss:
o ausbaufähig
Bauweise & Zustand
o Ursprungsbau ca. 1930
o Bauernhaus
o Dach teilgedämmt - Sanierungsbedürftig
o doppelverglaste Fenster im EG und OG
o Bad sanierungsbedürftig
o Generell sanierungsbedürftiger Zustand
Technik & Ausstattung
o Separate Gaszentralheizung Haupthaus und Nebenhaus
o Badezimmer mit Badewanne
o Elektrik bedarf der Überholung
Außenanlagen
o ausreichend Parkmöglichkeiten auf dem Grundstück
o ruhige Lage
o zwei Scheunen mit viel Platz und Umbaupotential
o großer Innenhof mit individuellen Nutzungsmöglichkeiten
Mikrolage
Die Immobilie befindet sich in attraktiver Lage am historischen Ortskern von Dirmstein. Besonders hervorzuheben ist die unmittelbare Nähe zum ehemaligen dem Schlosspark Dirmstein, der das Umfeld durch seine grüne, ruhige und historisch geprägte Atmosphäre deutlich aufwertet. Die Umgebung ist geprägt von gepflegten Wohn- und Altbauten mit viel Charme und einem angenehmen Maß an Privatsphäre. Einkaufsmöglichkeiten für den täglichen Bedarf sowie Bäckereien und kleinere Dienstleister sind in unmittelbarer Nähe erreichbar.
Makrolage
Dirmstein liegt in der beliebten Region der Vorderpfalz und gehört zum Landkreis Bad Dürkheim. Die zentrale Lage zwischen den Städten Ludwigshafen am Rhein, Mannheim und Kaiserslautern bietet eine hervorragende Anbindung an wirtschaftsstarke Zentren. Über die nahegelegenen Bundesstraßen sowie die Autobahnen A6 und A61 sind sowohl die Metropolregion Rhein-Neckar als auch das Rhein-Main-Gebiet gut erreichbar. Gleichzeitig profitiert der Standort von seiner Lage an der Deutschen Weinstraße mit hohem Freizeit- und Erholungswert.
Bildung
Für Familien bietet Dirmstein eine gute Bildungsinfrastruktur. Vor Ort befinden sich Kindertagesstätten sowie eine Grundschule. Weiterführende Schulen sind in den umliegenden Städten wie Grünstadt oder Frankenthal in kurzer Fahrzeit erreichbar. Ergänzend stehen in der Region zahlreiche Betreuungs- und Förderangebote zur Verfügung.
Infrastruktur
Die Infrastruktur ist sehr gut ausgebaut und deckt den täglichen Bedarf zuverlässig ab. Supermärkte, Bäckereien, Gastronomie sowie Ärzte und Apotheken befinden sich in der näheren Umgebung. Die Anbindung an den öffentlichen Nahverkehr ist durch Busverbindungen gesichert, mit Anschluss an regionale Bahnnetze in den umliegenden Städten. Auch für Pendler ist die Lage durch die gute Erreichbarkeit der überregionalen Verkehrsachsen attraktiv.
Freizeit
Die Umgebung bietet ein vielfältiges Freizeit- und Erholungsangebot. Spaziergänge und Radtouren durch die Weinberge und die angrenzende Landschaft sind direkt ab der Haustür möglich. Der historische Ortskern sowie der Schlosspark prägen das kulturelle Umfeld zusätzlich. Zahlreiche Weingüter, Straußwirtschaften und Feste sorgen für eine hohe Lebensqualität. Darüber hinaus laden der nahegelegene Pfälzerwald sowie die Deutsche Weinstraße zu abwechslungsreichen Ausflügen in die Natur ein.
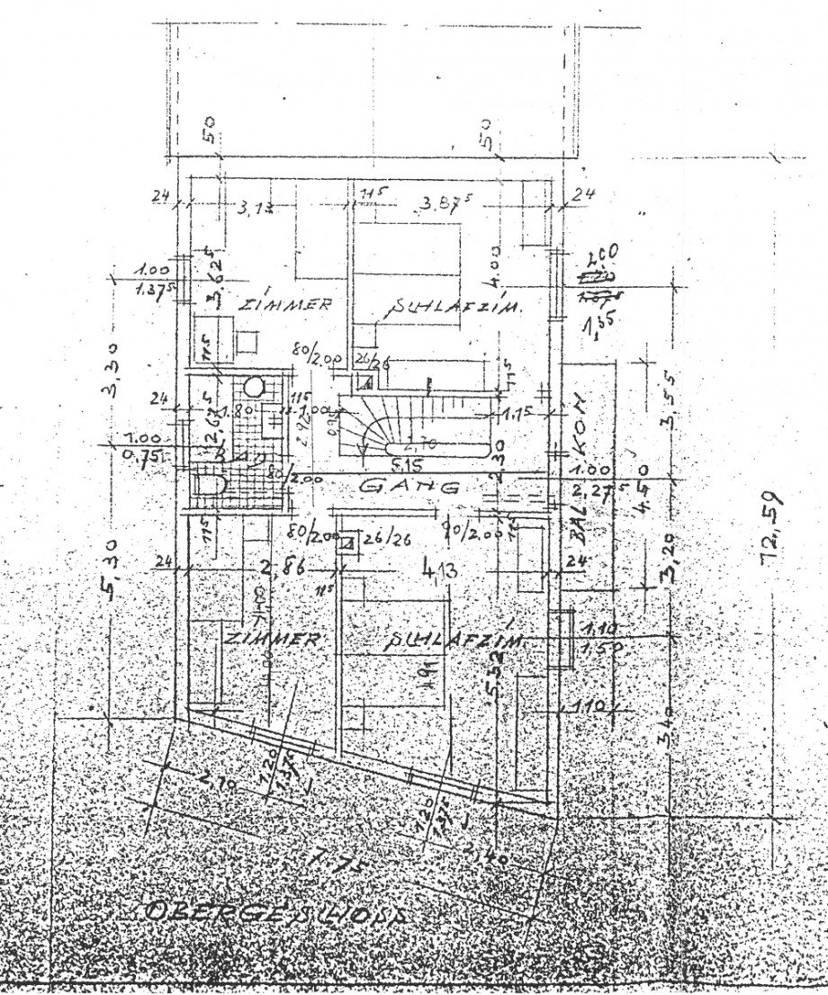
Haftungsausschluss: Bei unseren Exposés legen wir großen Wert darauf, Ihnen einen umfassenden und detaillierten Einblick in das Objekt zu gewähren. Die Grundrisse welche diesem Exposé beiliegen wurden uns von dem Eigentümer zur Verfügung gestellt. Die Flächenberechnungen erfolgen gemäß der Wohnflächenverordnung (WoFlV). Alle dargestellten Maße und Flächenangaben dienen der Orientierung und stellen ungefähre Angaben dar. Für deren Richtigkeit und Vollständigkeit wird keine Haftung übernommen. Sie ermöglichen eine erste visuelle Vorstellung der Objektstruktur.
Alle in diesem Exposé gemachten Angaben stammen aus Quellen, die wir als zuverlässig erachten, und wurden mit größter Sorgfalt und nach bestem Wissen und Gewissen zusammengestellt. Diese Informationen basieren auf den Auskünften des Verkäufers oder Dritter. Trotz unserer Bemühungen um größtmögliche Genauigkeit können wir keine Gewähr und Haftung für die Vollständigkeit, Richtigkeit und Aktualität dieser Angaben übernehmen.
Wir als Immobiliendienstleister sind nach dem Geldwäschegesetz verpflichtet die Identität unserer Kunden festzustellen und zu überprüfen. Diese Verpflichtung haben Immobilienmakler vor dem mündlichen oder schriftlichen Maklervertrag zu erfüllen. Um zu verhindern, dass Gewinne aus Straftaten in Umlauf gebracht werden, gibt es das sogenannte Geldwäschegesetz (GwG). Neben Banken, Versicherungen, Treuhändern, Anwälten und Steuerberatern gehören auch Immobiliendienstleister zu den Verpflichteten des GwG und müssen die Sorgfaltspflichten des Gesetzes anwenden. Seit 2011 wird die Einhaltung der Pflichten durch die Aufsichtsbehörden lückenlos kontrolliert. Die Verpflichteten müssen die Einhaltung dieser gegenüber den Behörden belegen.
- - - - - - - - - - - - - - - - - - - - - - - - - - - - - - - - - - - - - - - - - - - - - - - -
o Kostenlose Marktwerteinschätzung für Eigentümer o
Sie möchten Ihre Immobilie verkaufen oder vermieten und den realistischen Marktwert erfahren? Wir bieten Eigentümern eine kostenlose und unverbindliche Marktwerteinschätzung auf Basis aktueller Marktdaten und unserer regionalen Expertise. So erhalten Sie eine fundierte Entscheidungsgrundlage für die weitere Vermarktung.
o Vermietungsservice für Eigentümer - sorgenfrei und transparent o
Für private Vermieter bieten wir einen Rundum-Service bei der Vermietung inklusive Mietpreisermittlung, Exposé-Erstellung, Besichtigungsmanagement, Bonitätsprüfung sowie Erstellung des Mietvertrages. Die Vergütung beträgt 2 Monatsmieten (zzgl. gesetzlicher MwSt.) und ist nur bei erfolgreicher Vermietung fällig. Bei der gewerblichen Vermietung ist dieser Service für Vermieter kostenfrei.
Ansprechpartner
Telefax: 004963599612968
Mobil: 00491636967462
info@anfrageimmomuellerpfalz.de
Energieausweis (Bedarfsausweis)
308,80 kWh / (m²*a) Endenergiebedarf
308,80 kWh / (m²*a) Endenergiebedarf
308,80 kWh / (m²*a) Endenergiebedarf
Weitere Informationen
| Wesentlicher Energieträger | GAS |
| Energieausweis gültig bis | 2028-09-02 |
| Energieausweis Jahrgang | ab dem 1.5.2014 |
| Energieausweis Werteklasse | H |
| Energieausweis Baujahr | 2014 |
| Energieausweis Gebäudeart | Wohngebäude |
| Befeuerung | Gas |
Ich bin damit einverstanden, dass mir Karten von Google angezeigt werden. Es gelten die Datenschutzbedingungen von Google (https://policies.google.com/privacy).
Ich bin einverstanden
