Charmantes Bauernhaus mit zusätzlichem Mehrfamilienhaus & riesigem Gartenland in Höningen
Objektart
Adresse
Objektdaten
Informationen
Ausstattung
Details
Das ursprüngliche Bauernhaus aus dem Jahr 1888 bietet auf ca. 220 m² Wohnfläche ein einzigartiges Wohnambiente mit viel Charakter und großzügigen Raumstrukturen. Das Gebäude wurde in klassischer Sandsteinbauweise errichtet und überzeugt durch seinen unverwechselbaren historischen Ausdruck.
Im Laufe der Jahre wurde das Bauernhaus kontinuierlich modernisiert und instand gehalten, sodass sich der ursprüngliche Charakter harmonisch mit zeitgemäßem Wohnkomfort verbindet.
Auf dem ca. 2.916 m² großen Grundstück befindet sich zusätzlich eine im Jahr 2004 umgebaute Scheune mit drei Wohneinheiten und insgesamt ca. 150 m² Wohnfläche. Das Gebäude wurde in Massivbauweise mit 24 cm starken Außenwänden errichtet und überzeugt durch eine moderne, solide Bauqualität. Die Immobilie ist derzeit voll vermietet und generiert damit stabile laufende Mieteinnahmen - eine attraktive Kombination aus Eigennutzung und Kapitalanlage.
Ergänzt wird das Ensemble durch ein separates Poolhaus, das aktuell als Garten- bzw. Freizeitgebäude genutzt wird, jedoch vielfältige Nutzungsmöglichkeiten eröffnet - beispielsweise als Wellnessbereich, Hobbyraum oder Sommerlounge.
Ein besonderes Highlight ist das zusätzlich zum Anwesen gehörende über 2.000 m² große Gartenland (zum Teil in Hanglage), das zahlreiche Optionen bietet - von naturnaher Erholung über Selbstversorgung bis hin zu Tierhaltung oder individuellen Projekten.
Die Beheizung der Gebäude erfolgt über jeweils eine Gasheizung, die eine zuverlässige und effiziente Wärmeversorgung sicherstellt. Beide Wohneinheiten sind entsprechend eigenständig.
Das Dach des Bauernhauses wurde im Laufe des 20. Jahrhunderts instand gehalten. Gedämmt ist die Zwischendecke und somit kann über eine Dämmung des Daches, nachgedacht werden.
Die Bodenbeläge sind funktional und wohnlich ausgeführt:
Im Neubau wurden überwiegend pflegeleichte Fliesenböden verbaut.
Im Bauernhaus sind im Erdgeschoss ebenfalls Fliesenböden vorhanden, während im Obergeschoss überwiegend Holzböden verlegt sind, die den historischen Charakter des Hauses unterstreichen und für eine warme Wohnatmosphäre sorgen.
Im Innenhof stehen ausreichend Stellplatzmöglichkeiten zur Verfügung, sodass Bewohner und Besucher ihre Fahrzeuge komfortabel und direkt auf dem Grundstück abstellen können.
Fazit
Dieses besondere Immobilienensemble kombiniert ein historisches, massiv errichtetes Sandstein-Bauernhaus mit potential für eigene Ideen und ein solides, im Jahr 2004 umgebaute Scheune in Massivbauweise mit laufenden Mieteinnahmen.
Ergänzt wird das Angebot durch großzügige Grundstücksflächen, ein separates Poolhaus sowie ein weitläufiges Gartenland mit vielfältigen Nutzungsmöglichkeiten.
Die Kombination aus Eigennutzung, Vermietung und Entwicklungspotenzial macht dieses Anwesen zu einer seltenen Gelegenheit für Käufer, die Wert auf Substanz, Flexibilität und Lebensqualität legen.
Objektart & Nutzung
o gepflegtes Bauernhaus aus 1888 und vermieteter Scheunenumbau aus 2004
o Nutzung als Wohnhaus mit viel Fläche
o Grundstück in ruhiger Lage direkt am Wald
o Große Einfahrt mit Stellplätzen im Hof
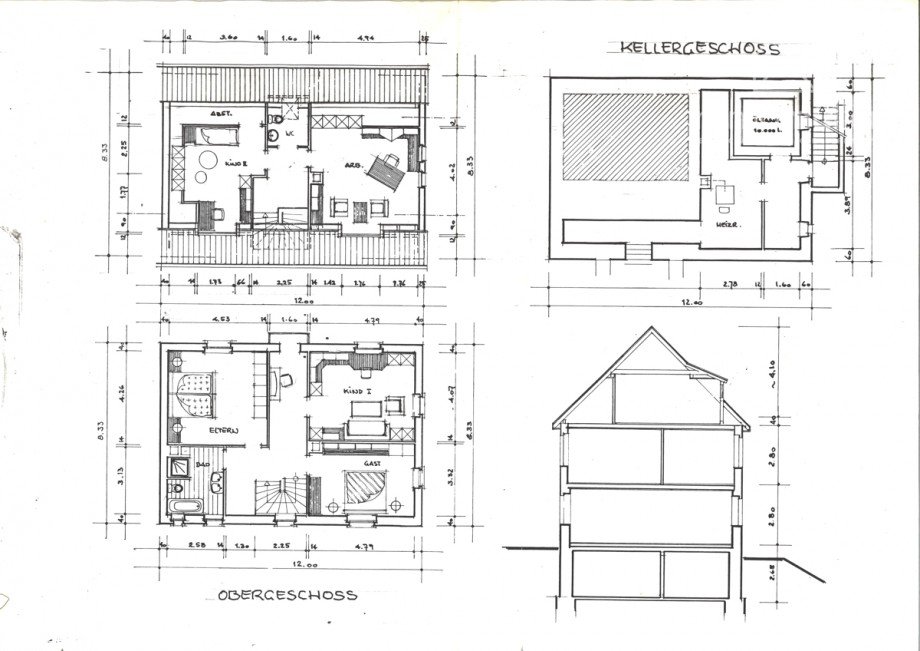
Flächen & Räume
o Wohnfläche ca. 220 m², verteilt auf Erdgeschoss, Obergeschoss und Dachgeschoss im Bauernhaus
o Wohnfläche ca. 150 m², verteilt auf drei Maisonetteartigen Wohnungen im Scheunenumbau
o Grundstücksgröße 2.916 m² inkl. 2.019 m² Gartenland
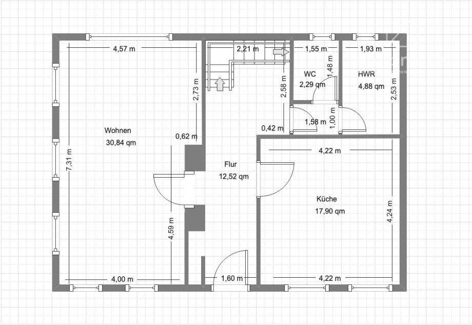
Erdgeschoss:
o Wohnzimmer
o Küche
o separates WC
o Hauswirtschaftsraum
o Deckenhöhe ca. 2,60 m
Obergeschoss:
o 2 Schlafzimmer / Arbeitszimmer
o separates Wohnzimmer
o Duschbad aus 2000ern
Dachgeschoss:
o 2 Schlafzimmer
o separates WC
Bauweise & Zustand
o Ursprungsbau ca. 1888
o Bauernhaus
o Dach ungedämmt
o doppelverglaste Fenster im EG und OG - DG mit einfach verglasten Fenstern
o Bäder 2021/2022 saniert
o gepflegter Zustand mit teil. Renovierungsbedarf
Technik & Ausstattung
o Gaszentralheizung aus dem 20. Jahrhundert
o Waschmaschinenanschluss im HWR
o Badezimmer mit Dusche und Badewanne
o Elektrik im ordentlichen Zustand und teilmodernisiert
Außenanlagen
o ausreichend Parkmöglichkeiten auf dem Grundstück
o ruhige Lage
o Pool im Gartenhaus möglich
o großer Garten mit individuellen Nutzungsmöglichkeiten
o Tierhaltung möglich
Makrolage - Wohnen, wo andere Urlaub machen
Die charmante Ortsgemeinde Höningen liegt im begehrten Landkreis Bad Dürkheim - idyllisch eingebettet im Leiningerland am Rand des Pfälzerwald. Die Region überzeugt durch ihre hohe Lebensqualität, naturnahe Umgebung und einen besonders hohen Erholungswert. Trotz der ruhigen Lage profitieren Sie von einer guten Verkehrsanbindung: Die Bundesstraße B47 sowie die Autobahn A6 sind schnell erreichbar und gewährleisten eine komfortable Anbindung in die umliegenden Wirtschaftszentren. Die nahegelegenen Städte Grünstadt und Eisenberg (Pfalz) bieten zudem Bahnanschlüsse sowie eine sehr gute Infrastruktur. Der öffentliche Nahverkehr ist durch Busverbindungen gesichert.
Mikrolage - Ruhig, zentral und gut erreichbar
Das Objekt befindet sich in zentraler Lage von Höningen an der Höninger Hauptstraße - ideal für eine unkomplizierte Erreichbarkeit im Alltag.
Die Nachbarschaft ist geprägt von gepflegten Ein- und Zweifamilienhäusern sowie vereinzelt landwirtschaftlichen Anwesen. Diese gewachsene Struktur sorgt für ein angenehmes, ruhiges Wohnumfeld mit dörflichem Charme. Gewerbliche Nutzungen sind kaum vorhanden, sodass Sie hier entspannt wohnen können.
Bildung - Familienfreundliche Rahmenbedingungen
Für Familien bietet die Lage solide und gut erreichbare Bildungsangebote: Kindergärten und Grundschulen befinden sich in den umliegenden Gemeinden. Weiterführende Schulen sowie weitere Bildungseinrichtungen sind bequem in Grünstadt und Eisenberg (Pfalz) erreichbar.
Infrastruktur - Alles Wichtige in Reichweite
Höningen verbindet ruhiges Wohnen mit einer praktischen Nähe zur städtischen Infrastruktur. Dinge des täglichen Bedarfs sind in den umliegenden Orten verfügbar, während Sie in wenigen Minuten ein umfangreiches Angebot an Einkaufsmöglichkeiten, Ärzten, Apotheken und Dienstleistungen - insbesondere in Grünstadt - erreichen.
Die vollständige technische Erschließung (Wasser, Abwasser, Strom, Telekommunikation) ist selbstverständlich gegeben.
Freizeit - Natur, Wein und Lebensqualität
Ein echtes Highlight dieser Lage ist der außergewöhnlich hohe Freizeitwert: Direkt vor der Haustür beginnt der Pfälzerwald - eines der größten zusammenhängenden Waldgebiete Deutschlands. Ob Wandern, Radfahren oder einfach Entspannen in der Natur - hier kommen Naturliebhaber voll auf ihre Kosten. Ergänzt wird das Angebot durch die reizvolle Weinregion der Pfalz mit zahlreichen Ausflugszielen, Weinfesten und kulinarischen Highlights.
Haftungsausschluss: Bei unseren Exposés legen wir großen Wert darauf, Ihnen einen umfassenden und detaillierten Einblick in das Objekt zu gewähren. Die Grundrisse welche diesem Exposé beiliegen wurden uns von dem Eigentümer zur Verfügung gestellt. Die Flächenberechnungen erfolgen gemäß der Wohnflächenverordnung (WoFlV). Alle dargestellten Maße und Flächenangaben dienen der Orientierung und stellen ungefähre Angaben dar. Für deren Richtigkeit und Vollständigkeit wird keine Haftung übernommen. Sie ermöglichen eine erste visuelle Vorstellung der Objektstruktur.
Alle in diesem Exposé gemachten Angaben stammen aus Quellen, die wir als zuverlässig erachten, und wurden mit größter Sorgfalt und nach bestem Wissen und Gewissen zusammengestellt. Diese Informationen basieren auf den Auskünften des Verkäufers oder Dritter. Trotz unserer Bemühungen um größtmögliche Genauigkeit können wir keine Gewähr und Haftung für die Vollständigkeit, Richtigkeit und Aktualität dieser Angaben übernehmen.
Wir als Immobiliendienstleister sind nach dem Geldwäschegesetz verpflichtet die Identität unserer Kunden festzustellen und zu überprüfen. Diese Verpflichtung haben Immobilienmakler vor dem mündlichen oder schriftlichen Maklervertrag zu erfüllen. Um zu verhindern, dass Gewinne aus Straftaten in Umlauf gebracht werden, gibt es das sogenannte Geldwäschegesetz (GwG). Neben Banken, Versicherungen, Treuhändern, Anwälten und Steuerberatern gehören auch Immobiliendienstleister zu den Verpflichteten des GwG und müssen die Sorgfaltspflichten des Gesetzes anwenden. Seit 2011 wird die Einhaltung der Pflichten durch die Aufsichtsbehörden lückenlos kontrolliert. Die Verpflichteten müssen die Einhaltung dieser gegenüber den Behörden belegen.
- - - - - - - - - - - - - - - - - - - - - - - - - - - - - - - - - - - - - - - - - - - - - - - -
o Kostenlose Marktwerteinschätzung für Eigentümer o
Sie möchten Ihre Immobilie verkaufen oder vermieten und den realistischen Marktwert erfahren? Wir bieten Eigentümern eine kostenlose und unverbindliche Marktwerteinschätzung auf Basis aktueller Marktdaten und unserer regionalen Expertise. So erhalten Sie eine fundierte Entscheidungsgrundlage für die weitere Vermarktung.
o Vermietungsservice für Eigentümer - sorgenfrei und transparent o
Für private Vermieter bieten wir einen Rundum-Service bei der Vermietung inklusive Mietpreisermittlung, Exposé-Erstellung, Besichtigungsmanagement, Bonitätsprüfung sowie Erstellung des Mietvertrages. Die Vergütung beträgt 2 Monatsmieten (zzgl. gesetzlicher MwSt.) und ist nur bei erfolgreicher Vermietung fällig. Bei der gewerblichen Vermietung ist dieser Service für Vermieter kostenfrei.
Ansprechpartner
Telefax: 004963599612968
Mobil: 00491636967462
info@anfrageimmomuellerpfalz.de
Energieausweis (Bedarfsausweis)
136,41 kWh / (m²*a) Endenergiebedarf
136,41 kWh / (m²*a) Endenergiebedarf
136,41 kWh / (m²*a) Endenergiebedarf
Weitere Informationen
| Wesentlicher Energieträger | GAS |
| Energieausweis gültig bis | 2036-04-20 |
| Energieausweis Jahrgang | ab dem 1.5.2014 |
| Energieausweis Werteklasse | E |
| Energieausweis Baujahr | 2004 |
| Energieausweis Gebäudeart | Wohngebäude |
| Befeuerung | Gas |
Ich bin damit einverstanden, dass mir Karten von Google angezeigt werden. Es gelten die Datenschutzbedingungen von Google (https://policies.google.com/privacy).
Ich bin einverstanden
